Let op! Deze woning is niet meer beschikbaar.
Beschrijving
Herengracht 187B 1016BE Amsterdam
Characteristics
| Property details | |
|---|---|
| Vraagprijs | €995.000 |
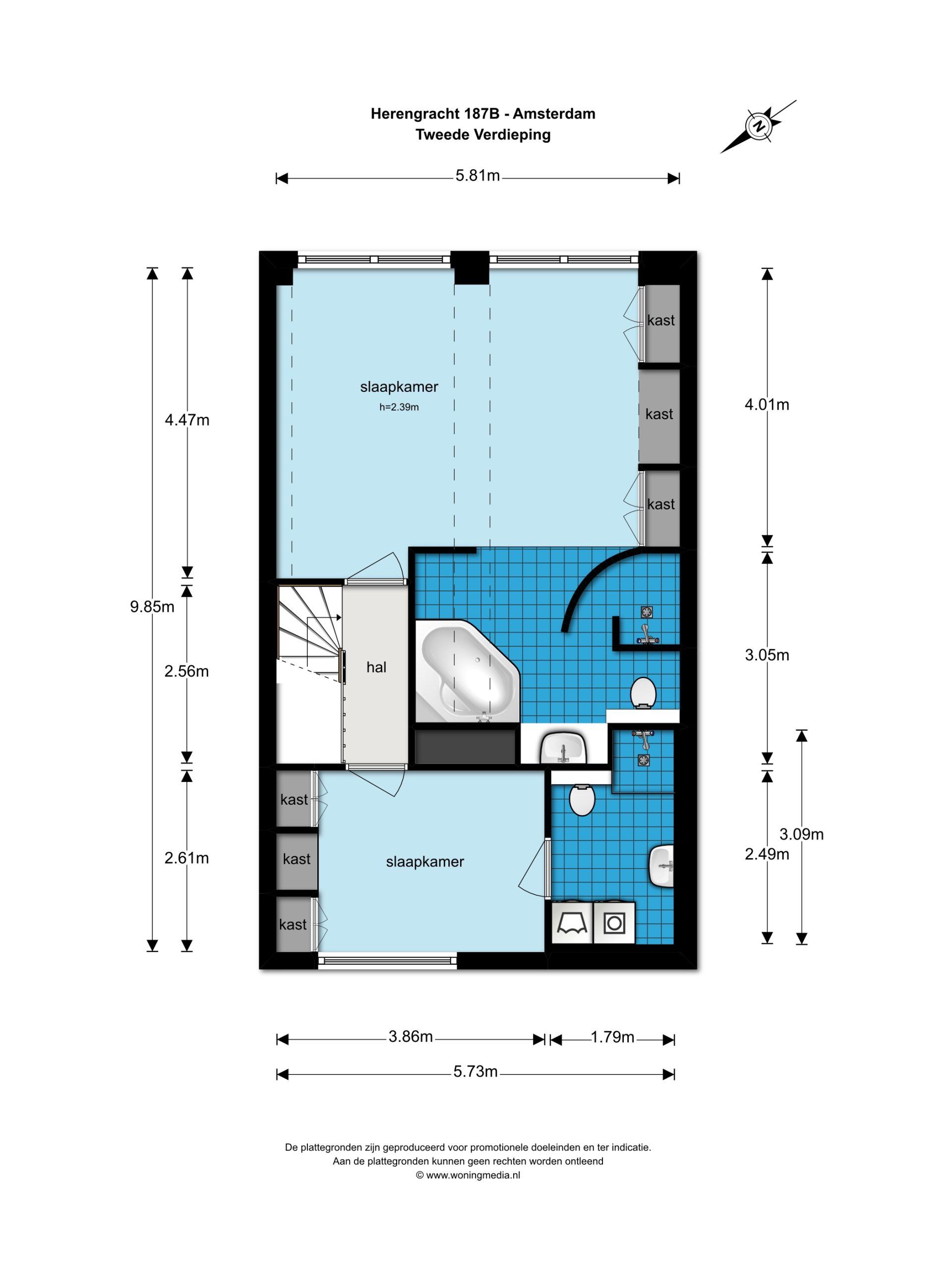
| Living area | 112 m² |
| Volume | 372 m³ |
| Bedrooms | 2 |
| Bathrooms | 1 |
| Year of construction | 1900 |
| Type of construction | Existing construction |
| Type of apartment | Maisonnette |
| Floor | 1 |
| Amenities | |
| Energy label | D |
| Elevator | Not available |
| Parking facilities | Betaald Parkeren, Parkeervergunningen |
| HOA contribution | €429,37 Per month |
| Location | |
| City | Amsterdam |
| Country | NL |
| Surroundings | Aan Water, In Centrum |
| Status | |
| Availability | Niet meer beschikbaar |
| Acceptance | Per date |
| Layout | |
| Begane grond | 2 Bedroom(s). Bathroom: 2 bathroom(s), Inloopdouche, Sauna, Toilet, Wastafel, Ligbad. Balkon, Toilet |
Interested? Get in touch
Would you like to know more about our services or schedule an appointment? We're happy to help.
Contact us